\SERVERLDCP WorkProjects-ACTIVE14 03 Martin HouseMartin_LDC

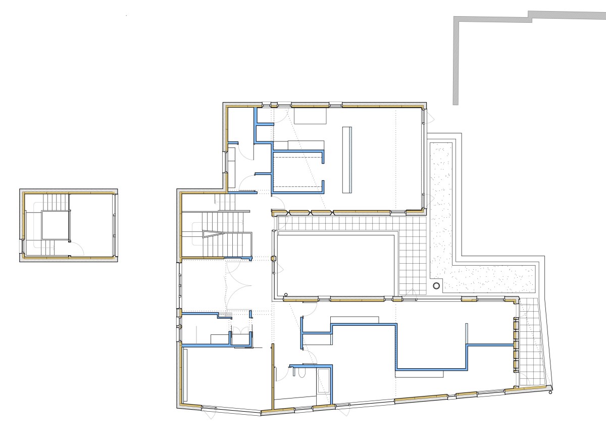
Level 2 & Solarium

Both comments and trackbacks are currently closed.