\SERVERLDCP WorkProjects-ACTIVE11 01 Cottage StCtgSt_LDCP D

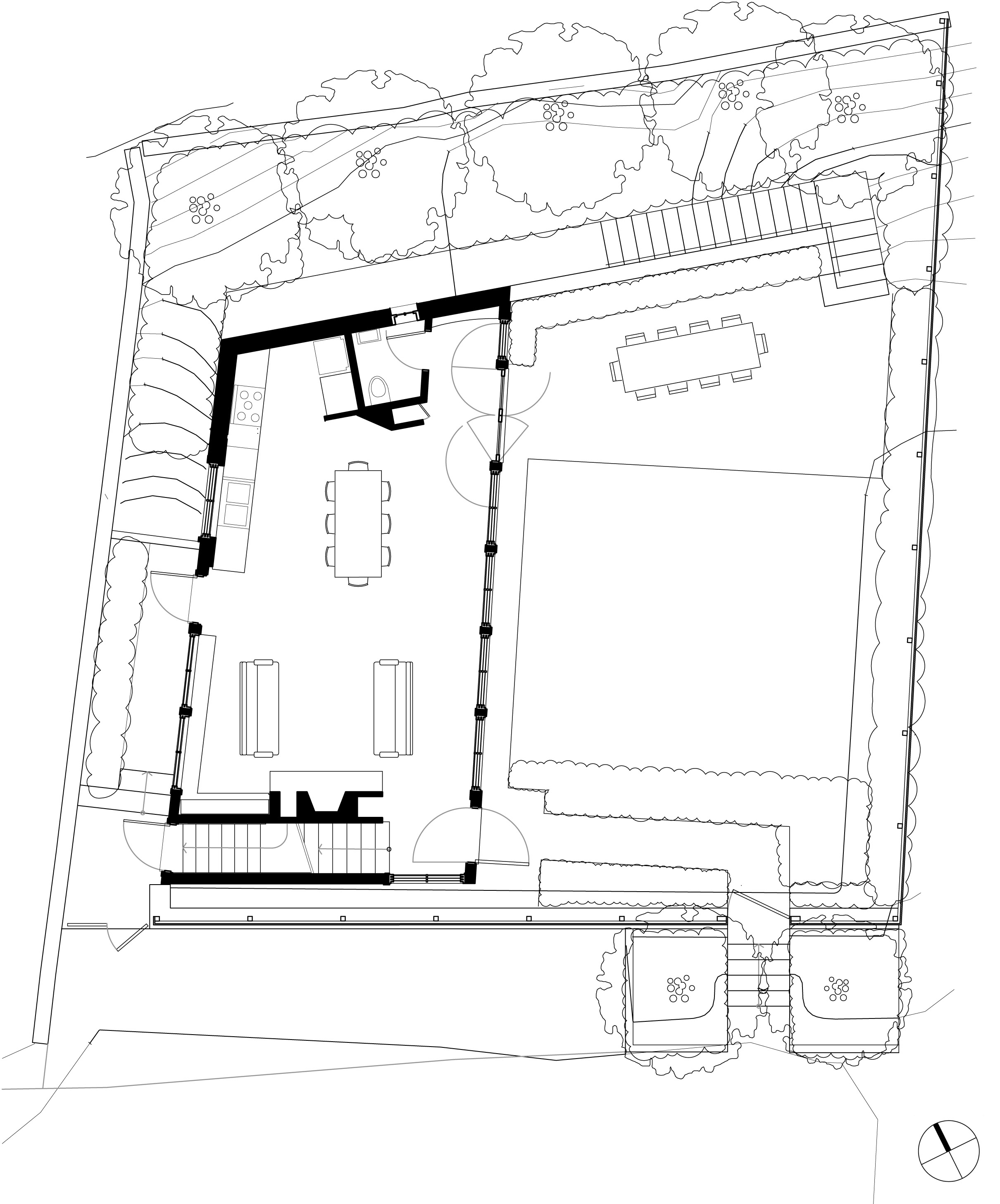
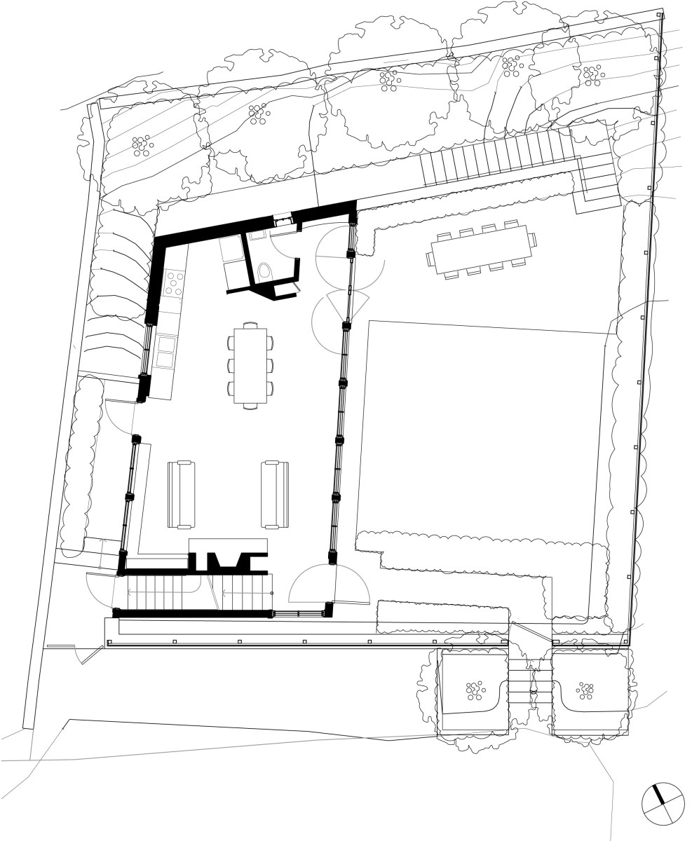
Site plan

Both comments and trackbacks are currently closed.